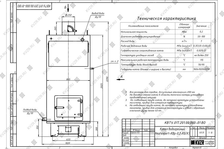
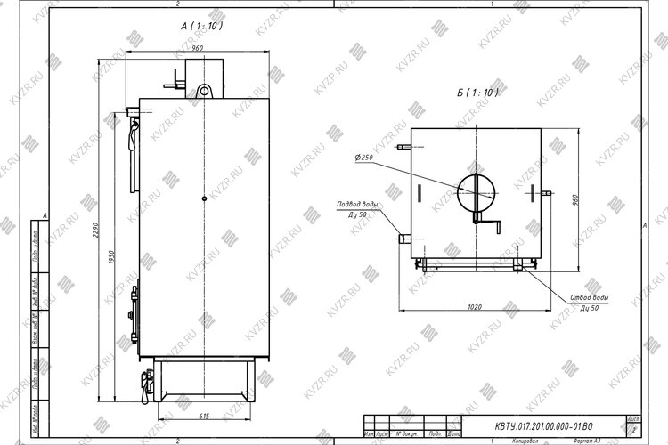
Надежный и энергоффективный промышленный котел КВр 0.2 мощностью 0,2 МВт на каменном и буром угле, предназначен для стабильного отопления и горячего водоснабжения и вентиляции производственных, коммерческих и жилищно-коммунальных объектов площадью до 2200 м², температурой теплоносителя на выходе 95 - 115 °С, рабочим давлением 0,15 - 0,3 кгс/см (1,5 - 3) МПа.
Конструкция с ручной загрузкой топлива и продуманной схемой движения теплоносителя и газов обеспечивает высокий КПД, долговечность и простоту в эксплуатации.
Промышленный твердотопливный котел КВр-0.2-115 (95) КБ идеально подходит для автономного отопления и ГВС и вентиляции различных объектов:
Промышленный угольный котел КВр-0,2 К с ручной загрузкой — это результат многолетнего опыта в проектировании надежного промышленного оборудования. Его конструкция продумана до мелочей для обеспечения высокого КПД, долговечности и простоты обслуживания.
1. Топочная камера с газоплотностью
Топочная камера представляет собой систему газоплотных панелей.
2. Развитая конвективная система – основа эффективности
После камеры сгорания дымовые газы не сразу уходят в дымоход, а попадают в высокоэффективную конвективную часть, работающую по принципу экономайзера.
3. Колосниковая решетка для эффективного горения
Решетка собрана из литых чугунных колосников с щелевидными отверстиями. Конструкция отверстий обеспечивает оптимальный подвод воздуха для горения и беспрепятственный провал шлака, предотвращая забивание.
4. Продуманная теплоизоляция и обшивка
Котел КВ 0.2 МВт на твердом топливе имеет съемную облегченную обмуровку на основе плит базальтового волокна (ПТЭ), закрепленных на каркасе и защищенных обшивкой из стального листа.
Преимущество: Такая конструкция минимизирует тепловые потери в окружающую среду, повышая общий КПД котельной установки. Кроме того, она обеспечивает максимальную заводскую готовность.
5. Удобство обслуживания для снижения эксплуатационных расходов
Конструкция предусматривает легкий доступ для чистки и осмотра:
Производительность котла может варьироваться в пределах 50 – 100% от номинальной мощности котла.
1. Загрузка: Уголь вручную равномерно распределяется слоем до 200 мм на колосниковую решетку через фронтальную дверцу.
2. Горение: Подвод воздуха на горение твердого топлива осуществляется за счет разряжения в топке, путем подсоса через дверку в зольный короб. Регулирование тяги в газоходе производится поворотным шибером. С помощью шиберов котел легко регулируется по мощности.
3. Теплообмен: Дымовые газы, отдав лучистое тепло в топке, проходят конвективную ступень (двигаясь вверх), где интенсивно охлаждаются до 200 °С, отдавая тепло воде в трубах.
4. Удаление продуктов сгорания: Отработанные газы выводятся через шибер на верхней стенке котла в газоход и за счет разности температур уходящих газов и наружнего воздуха выводятся в дымовую трубу. Шлак удаляется через зольниковый люк.
5. Регулировка мощности осуществляется просто: оператор изменяет интенсивность горения, управляя загрузкой топлива и регулируя подачу воздуха через шиберы в зольном коробе и на выходе дымовых газов из котла.
Для предотвращения конденсации водяных паров из дымовых газов и как следствие налипание золовых частиц на конвективную поверхность нагрева, рекомендуется держать температуру воды на входе в котел при работе на пониженной нагрузке выше 55 °C. Удобным устройством регулировки температуры подачи воды является термостатический смесительный клапан для отопления.
В случае снижения разряжения в топочной камере и ухудшения тяги следует производится остановка котла для проведения работ по прочистке газоходов котла и дымовой трубы от осевшей золы и сажи. Для очистки конвективной части котла предусмотрен люк в конвективной части. Очистка осуществляется при помощи скребков, либо обдувкой сжатым воздухом при помощи компрессора.
Более подробная информация содержится в паспорте и инструкции по монтажу и эксплуатации котла КВр 0.2 МВт.
Надежная конструкция водогрейного котла КВр -0,2 обеспечит срок эксплуатации котла, а ваш объект стабильным и экономичным теплом на протяжении 10 лет.
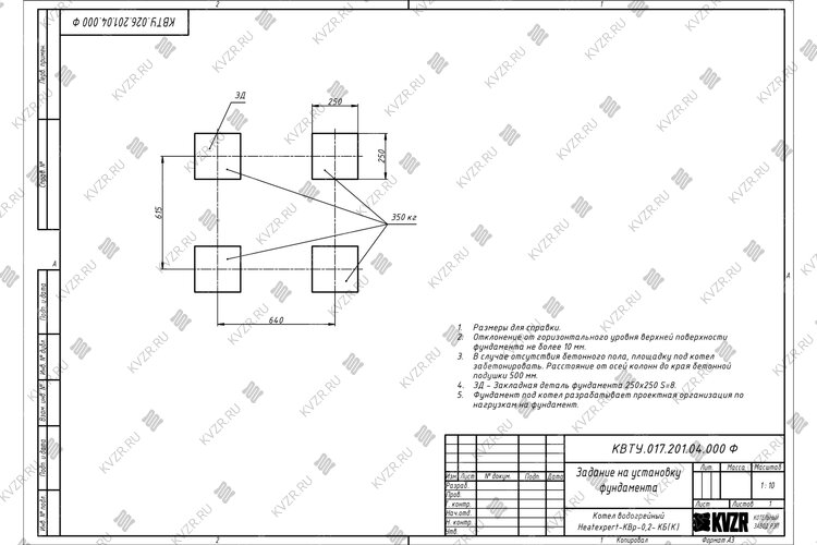
Твердотопливный промышленный котел КВр 0 2 МВт с колосниками для котельной поставляется двумя блоками максимальной заводской готовности. Топка устанавливается в котельной на специально подготовленную ровную поверхность и закрепляется анкерными болтами. На топку устанавливается котельный блок. Смонтированный котел подсоединяется по воде, воздуху и газам, монтируется вся запорная арматура на подводящем и отводящих трубопроводах, на дренажах и воздушниках, предохранительные устройства (предохранительные клапана) и измерительные приборы.
Сразу на котельный блок может быть установлена дымовая труба диаметром 250 и высотой 6 метров. Возможно также газоход вывести за пределы котельной и дымовую трубу установить снаружи здания. После полного монтажа необходимо произвести гидравлическое испытание котла давлением не более 1,5 Рраб.
Мы осуществляем отгрузку котлов автотранспортом и железнодорожными перевозчиками в любую точку России и стран СНГ. Каждый котел КВр 0,2 ТТ надежно упаковывается и крепится для безопасной транспортировки.
Для расчета точной стоимости доставки до вашего города или населенного пункта отправьте нам онлайн-заявку. Наши логисты оперативно подготовят для вас варианты доставки с просчитанной стоимостью и сроками. Вы также можете уточнить любую информацию об условиях покупки котла онлайн, через форму обратной связи.
Чтобы купить промышленный водогрейный котел КВр-0.2 КБ и получить комплексное решение для вашей котельной, свяжитесь с нами любым удобным способом:
Позвоните в отдел сбыта:
+ 8-800-700-17-43
+7 (3852) 29-97-41 (многоканальный)
Напишите в отдел сбыта:
SB@KVZR.RU
Отправьте онлайн-заявку на коммерческое предложение через сайт.
Наши специалисты помогут вам:
Котельный завод «РЭП» изготавливает котлы КВр-0.2 не только по типовым проектам, но и по техническому заданию заказчика.
Мы можем реализовать для вас:
Вся наша продукция соответствует самым строгим стандартам качества и безопасности.
Расшифровка маркировки КВр-0,2 КБ:
Дополнительные аббревиатуры в маркировке:
Цена водогрейного котла КВр-0.2 в Новосибирске включает в себя котельный блок в изоляции, колосники, вентили, затворы, манометры, термометры и предохранительные клапаны. Ниже приведена подробная информация.
Для эффективной и надежной работы котла КВр-0.2 в вашей котельной вам потребуется дополнительное оборудование - автоматика ЩУК, насос сетевой и подпиточный, газоходы и переходники для газового тракта, дымовая труба. Мы предлагаем рассмотреть типовые варианты комплектации.
В случае если у вас на объекте уже имеется насосное и тягодутьевое оборудование, мы можем проверить совместимость котла КВр-0.2 нашего производства и вашего оборудования.
Можем изготовить нестандартные узлы для выполнения быстрого монтажа котла - газоходы и узлы обвязки.
Типовую схему монтажа котла вы можете посмотреть во вкладке схемы подключения и монтаж.
Водогрейный твердотопливный стальной отопительный котел КВр-0.2, предназначен для получения горячей воды номинальной температурой на выходе из котла от 95 до 115 °С рабочим давлением до 0,6 (6,0) МПа (кгс/см), используемой в системах централизованного теплоснабжения на нужды отопления, горячего водоснабжения. Устанавливается в производственных, промышленных и отопительных котельных.
Монтаж водогрейного котла КВр-0.2 и вспомогательного оборудования в котельной должно производиться в соответствии с проектом и учетом требований СП 89.13330. 2016 «Котельные установки. Актуализированная редакция СНиП II-35-76» и «Правил устройства и безопасной эксплуатации паровых котлов с давлением пара не более 0,07 МПа (0,7 кгс/см2), водогрейных котлов и водоподогревателей с температурой нагрева воды не выше 388 К (115 С). Правильный монтаж котла – залог его надежной и долгой работы.
Чтобы правильно подключить котел КВр-0.2 в котельной необходимо оставить проемы для обслуживания оборудования во время эксплуатации. На представленной здесь схеме указаны их минимальные размеры. Кроме того, в данной примерной схеме монтажа водогрейных котлов и оборудования указан перечень минимально необходимого вспомогательного оборудования для правильной работы котла.
К вспомогательному оборудованию при подключении промышленного водогрейного котла КВр относят - щит управления котлом, насос циркуляционный, насос подпиточной воды, бак запаса воды, расширительный мембранный бак, дымовую трубу, систему газоходов и дымосос, золоуловитель (по желанию).
В случае если подпиточная вода не соответствует по своим характеристикам требованиям к питательной воде, необходимо предусмотреть систему водоподготовки котловой воды.
Для котельных 1 категории, являющиеся единственным источником тепла системы теплоснабжения и обеспечивающие потребителей первой категории, не имеющих индивидуальных резервных источников тепла, необходимо предусмотреть полное резервирование оборудования – подключение 2 (двух) котлов, насосов, ТДМ. Пунктиром обозначено оборудование для резервирования.
Для котельных 2 категории, включающие в себя промышленные и производственные котельные резервирование нужно предусматривать по необходимости.
Образец тепловой схемы подключения оборудования в котельной приведен на данной схеме. При эксплуатации очень важно грамотно осуществить подключение оборудования, установить все контрольно измерительные приборы, для контроля параметров работы котельной и запорную арматуру для оперативного переключения потока теплоносителя при плановой или аварийной остановке оборудования. Данную схему можно использовать как пример для разработки под свой объект или заказать у нас разработку индивидуальной схемы для вашей котельной.
Водогрейные котлы производства Котельный завод "РЭП" соответствуют строгим стандартам качества и безопасности. Завод производит котлы КВр-0.2 в соответствии с требованиями ГОСТ 30735-3001 по Техническим Условиям завода.
Котлы имеют все необходимые сертификаты соответствия Техническим регламентам Таможенного союза:
Водогрейный котел КВр-0.2 имеет гарантийный срок 24 месяца и срок работы при соблюдении правил монтажа и эксплуатации оборудования 10 лет.

Отзыв о работе котла КВр производства Котельный завод "РЭП", проработавшего на АО "Водоканал" г. Белокуриха 10 лет. Интервью предоставил заместитель главного директора по производству Суходоев Сергей Николаевич.

Интервью с главным энергетиком базового комплекса "Сводор" г. Барнаул о работе водогрейного котла нашего производства, отапливающего предприятие с 2008 года.
Всем привет. Купила данный котел и не пожалела. Теплый и надежный. Боялась, что не влезет в стойку, но размеры точно соответствуют заявленным. Качество на высоте. Покупайте и не пожалеете.
Водогрейный котел КВр-0.2, мощностью 0.2 МВт используется для отопления производственных, административных и жилых зданий. Котельный завод производит и поставляет весь перечень сопутствующего котельного оборудования- насосы, газоходы, автоматику, дымососы, дымовые трубы, циклоны и прочее. Специалисты нашего завода бесплатно подберут сопутствующее оборудование, а в случае необходимости, выполнят проектирование, монтаж и пуско-наладку котельной установки.
Подобрать мощность котла по площади важно учитывая не только площадь и объем здания, но и тип зданий и климатические данные региона.
На нашем сайте калькулятор расчета мощности котла учитывает тепло, требуемое на возмещение тепловых потерь через строительные конструкции и потери, вызываемые инфильтрацией (проникновением) наружного воздуха, через их неплотности и периодически открываемые двери.
Наружный строительный объем здания должен определяться умножением площади горизонтального сечения, взятого по внешнему обводу здания на уровне первого этажа на полную высоту здания, измеренную для панельных зданий: от уровня чистого пола (нулевой отметки) до верхней плоскости теплоизоляционного слоя чердачного покрытия, для остальных строений от уровня земли.
Расчетная температура воздуха в отапливаемых зданий принимается в зависимости от типа и назначения здания:
В случае если требуется отопление различных по типу зданий, теплопотребление каждого считается отдельно, полученные значения складываются и подобрать мощность котла нужно в соответствии с общей суммарной мощностью каждого отдельно стоящего задания.
Климатические условия вашего региона принимаются в соответствии с СП 131.13330 Строительная климатология. Данные по всем регионам России занесены в наш калькулятор расчета мощности котла.
Подобрать мощность котла по площади с учетом потребностей объекта в тепле на вентиляцию и горячую воду возможно только с более детальным расчетом. Его вы можете заказать в отделе сбыта котельного завода отправив заявку на электронный адрес sb@kvzr.ru или позвонив по телефонам (38-52) 29-97-41, 29-97-42.
Наши промышленные твердотполивные котлы КВр бренда HeatExpert идеально подходят для отопления следующих объектов и предприятий: фабрики и цеха по производству мебели, заводы по переработке древесины, сельскохозяйственные объекты, промышленные склады и ангары, нефтеперерабатывающие заводы, химические заводы, торговые центры и магазины, гостиницы и туристические базы, автосервисы и ремонтные мастерские, станции технического обслуживания СТО, здания общепита, кафе, рестораны, котельные для жилых и административных зданий, модульные котельные, бюджетные предприятия и ЖКХ, угольные и торфяные предприятия, строительные площадки, спортивные и развлекательные комплексы, заводы по производству стройматериалов, целлюлозно-бумажные комбинаты, мясокомбинаты и молочные заводы, консервные заводы, рыбоперерабатывающие предприятия, тепличные комплексы, животноводческие фермы, птицефабрики, горнодобывающие комбинаты, текстильные фабрики, фармацевтические заводы, металлургические комбинаты, заводы по производству асфальта.
Промышленный водогрейный котел мощностью 1 МВт предназначен для отопления зданий различного назначения.
При стандартных условиях (качественное утепление, высота потолков до 3 метров, климат средней полосы России) отапливаемый объем, на который рассчитан котел 1 МВт, составляет примерно от 22900 до 32900 кубических метров, это соответствует отапливаемой площади около от 7700 до 11000 квадратных метров. Если вам необходимо отопить объекты с различной высотой потолков, необходимо просчитать каждый объем отдельно и сложить их все.
Важно понимать, что объем отапливаемого помещения — расчетная величина. Фактическая отапливаемая площадь и общий отапливаемый объем здания, который сможет эффективно обогреть котел 1 МВт, зависят от множества факторов:
Таким образом, подбор оборудования по принципу «площадь отапливаемая – мощность котла» является приблизительным. Для точного расчета отапливаемого объема вашего конкретного здания и подтверждения, что модель 1 МВт вам подходит, рекомендуем обратиться к нашим инженерам-теплотехникам или провести расчет по нашему калькулятору.
Промышленный водогрейный котел КВр — это классический твердотопливный агрегат слоевого горения с колосниковй топкой и ручной загрузкой, известный своей топливной универсальностью.
Главная особенность твердотполивного котла КВр — его всеядность (мультитопливность). В зависимости от доступности и стоимости в вашем регионе, вы можете гибко переключаться между видами топлива или использовать их смеси, что обеспечивает энергетическую независимость и управляемость бюджетом на отопление. Для достижения паспортной мощности и максимального КПД важно использовать топливо с соответствующими паспортными характеристиками (влажность, зольность, теплотворная способность).
Слоевая решетка топки позволяет эффективно сжигать широкий спектр доступного и экономичного твердого топлива.
Основные виды твердого топлива для котла КВр - каменный и бурый уголь. Это основной и наиболее рекомендуемый вид топлива, обеспечивающий максимальный КПД, стабильную мощность и длительную работу на одной загрузке. Котел оптимизирован для работы на различных фракциях угля. Для каменного угля крупной фракции эффективно топочное устройство - чугунная колосниковая решетка, а для бурого угля и мелкой фракции - водоохладаемая беспровальная радиальная воздухораспределительная решетка или ОУР. В топке ОУР горение происходит на водоохлаждаемых трубах, по которым течет теплоноситель, и между которых вварены полосы металла с мелкими радиальными ответстиями, через которые более интенсивно и равномерно происходит водача воздуха в слой топлива, и через которые почти не происходит провала недогоревшего топлива в зольный короб.
Котельный завод РЭП также выпускает модели котлов предназначенные для сжигания резервного топлива - дрова (поленья). Котел хорошо работает на сухих дровах лиственных пород, что делает его популярным для котельных, расположенных в регионах с доступной древесиной. Важно учитывать более высокий расход по сравнению с углем и более габаритные размеры древесного топлива. Поэтому модель теплогенератора для сжигания и угля и дров имеет две загрузочные двери.
При стабильной нагрузке промышленного котла с ручной топкой топливо в топку следует загружать через равные промежутки времени, несколько раз в час. Крупность (фракция) загружаемого топлива должна быть не более 100 мм.
Для исключения забивания конвективных поверхностей нагрева золовыми и сажистыми отложениями распределение свежего топлива по топочной решетке должно быть равномерным, высота слоя должна быть не более 100 мм. Полная высота слоя не более 150 мм при учете подушки шлака.
Каждую новую порцию забрасывают равномерно по всей решетке. Неровные слои топлива разравнивают пополнением из свежего топлива, и (или) путем разравнивания слоя шуровкой.
Загружать топливо и очищать решетку следует быстро, открывая дверку на возможно короткое время.
Во время работы котла следует следить за полным сгоранием топлива.
Решетка топки очищается от шлака через 4-7 часов в зависимости от сорта топлива и загрузки котла.Поддувало очищается по мере накопления золы и провала.
Кроме того, частота с которой нужно загружать уголь в котел, зависит еще от нескольких ключевых факторов:
Принцип работы промышленного водогрейного котла на твердом топливе с ручной загрузкой основан на процессе слоевого сжигания. Твердое топливо, преимущественно каменный уголь, сжигается в топочной камере на колосниковой решетке (слоевая топка). Выделяемое в процессе горения топлива тепло через стенки теплообменных поверхностей — экранных труб и конвективных пучков — передается теплоносителю (воде), которая циркулирует по замкнутой системе отопления или горячего водоснабжения.
Ключевыми для надежной, эффективной и безопасной эксплуатации являются три основных этапа: подготовка и растопка, основной режим работы с регулировкой параметров, плановое и аварийное техническое обслуживание котла.
Перед первичным или очередным пуском котла из холодного состояния (остановки) необходимо провести ревизию тепловых сетей, устранить утечки и произвести промывку системы теплоносителя.
Осмотр и проверка котельного оборудования: Убедитесь в чистоте топки, газоходов и конвективных поверхностей нагрева, исправности обмуровки и изоляции, работоспособности всей арматуры (задвижек, вентилей), предохранительных клапанов, дымососа, дутьевого вентилятора и контрольно-измерительных приборов (манометров, термометров).
Заполнение котла водой (теплоносителем): Откройте кран подачи воды и все воздушные штуцера (краны Маевского) для спуска воздуха. Заполняйте водогрейный котел медленно. Закройте воздушные штуцера только после того, как из них пойдет сплошная струя воды без воздуха. Убедитесь в полном отсутствии воздушных пробок в верхних коллекторах котла.
Вентиляция топки и газоходов: В целях взрывобезопасности перед любой растопкой, даже после кратковременной остановки, обязательно провентилируйте топочную камеру и газоходы в течение 10-15 минут, включив дымосос и дутьевой вентилятор для удаления возможных взрывоопасных газов.
Важное условие безопасной растопки: Растопка производится только по письменному распоряжению, зафиксированному в сменном журнале котельной. Для равномерного прогрева котла и предотвращения конденсации водяных паров из дымовых газов (что ведет к налипанию золы) поддерживайте температуру воды на входе в котел выше 55°C. Для этого рекомендуется использовать индивидуальный рециркуляционный насос или общую рециркуляционную линию в котельной.
Управление тепловой мощностью (производительностью) котла: Тепловая нагрузка водогрейного котла может плавно варьироваться в диапазоне от 50% до 100% от номинальной мощности, указанной в паспорте. Регулировка производится оператором путем согласованного (параллельного) изменения двух параметров: количества топлива, подаваемого в топку на горение, и количества подаваемого на горение воздуха (через изменение положения воздушных шиберов или частоты вращения дутьевого вентилятора).
Контроль качества процесса горения (топки): Визуальный признак правильной настройки режима горения — светло-соломенный цвет пламени в топочной камере и серый или белый дым из дымовой трубы. Температура воды на выходе из котла (подающий трубопровод) должна поддерживаться на заданном технологическом уровне.
Проводится регулярно, каждые 4-7 часов работы, в зависимости от сорта угля и тепловой нагрузки котла.
При внезапном отключении электроэнергии, остановке дымососа, резком ухудшении тяги или разгерметизации системы необходимо выполнить немедленную аварийную остановку: скинуть угли скребком с решетки на несгораемый пол котельного зала (или в аварийный бункер) и залить их большим количеством воды до полного прекращения горения.
Все действия оператора, рабочие параметры (температура, давление), проведенные продувки и выявленные неисправности должны в обязательном порядке фиксироваться в сменном (вахтенном) журнале котельной. Рекомендуемая организация работы — три производственные смены продолжительностью по 8 часов каждая.